ご希望日時を
指定ください
指定ください
戸建賃貸 プレステージ森南(森南町2丁目貸家-T) [#7390]
神戸市東灘区森南町2丁目の賃貸一戸建て(貸家・借家)
家賃168,000円 共益---- 間取3LDK
| タイプ | 戸建賃貸 | 物件番号 | No 7390 |
|---|---|---|---|
| 所在地 | 神戸市東灘区森南町2丁目 住所から地図を調べる[地図上でポイントされる位置はおおよその位置です] |
||
| 交通 |
JR神戸線甲南山手駅 5分 |
||
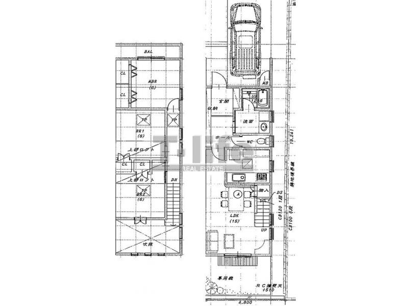
| 間取詳細 | 1F:LDK15 2F:6洋、6洋、6洋 | ||
| 家賃 | 168,000円 | 共益費 | ---- |
| 礼金 | 35万円 | 敷金 | 35万円 |
| 保証金 | ---- | 敷引金 | ---- |
| 面積 | 83.29m² | バルコニー方向 | 南 |
| 階/階建 | --/2階建 | 構造 | 木造 |
| 契約期間 | 2年 | 更新料 | 更新事務手数料:11,000円 |
| 現況 | 居住中 | 引渡し | 相談 |
| 火災保険 | 要(\20,000 ) | 駐車場 | 有(賃料に含む) |
| 小学校区 | 本山第三小学校 | 中学校区 | 本山南中学校 |
| 築年月 | H18/01 | ||
| 諸費用 | 賃貸家賃保証料、 鍵交換代 \11,000、 安心入居サポート料(2年) \16,500、 ハウスクリーニング費(退去時) \44,000、 | ||
| 特色 | JR「甲南山手」駅まで徒歩5分、敷地内駐車場、TV付インターホン、ロフト有り、CATV、対面式キッチン、システムキッチン、温水洗浄便座、追焚機能付浴槽、シャンプードレッサー、バス・トイレ別、室内洗濯機置場 | ||
| 備考 | |||
| アイコン |
|
||






[この物件をスマホ携帯で確認]


